№ 3985021
Офисов от 5 до 215 кв.м
Информация обновлена 17 апреля 2026
Просмотров : 3005
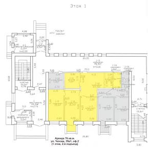
Аренда офисов (юридический адрес) от 5 до 200кв.м. в 3-хэтажном Бизнес центре "Восьмое чувство" в Индустриальном парке на улице Чехова. В географическом центре города Бобруйска. 400 метров от улицы Минской и остановки троллейбуса "Чехова". Имеются еще площади на 1 и 3 этажах. Стоимость за 1 кв.м от 3 у.е. Предоставление юридического адреса - 60, 00 руб. в месяц.
Юрий
Город: Бобруйск
Email:
reklama@888888.byУНП: 790393697
Организация: «Восьмое чувство». Агентство
Адрес объекта: Чехова, д.35в-1
Идёт обмен данными...
Произошла ошибка








Последние 0 комментариев