№ 3999159
Помещения
Информация обновлена 27 марта 2026
Просмотров : 912
Помещения:
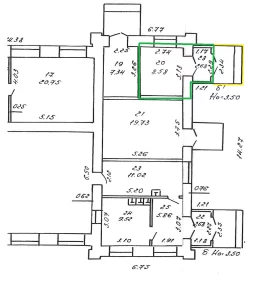
- площадью 11, 26 кв.м. имеют отдельный вход можно использовать для организации розничной торговли продовольственными и непродовольственными товарами (за исключением реализации алкогольной продукции), оказания банковских услуг, оказания услуг страхования, реализации печатной продукции и сопутствующих товаров, оказания услуг связи, оказания услуг по работе на вычислительной технике и связанного с этим обслуживания, оказания туристических услуг и др.
Также в аренду можно взять крыльцо площадью 4, 62 кв.м.
Арендная плата за 1 кв.м. 14, 1 бел.руб.
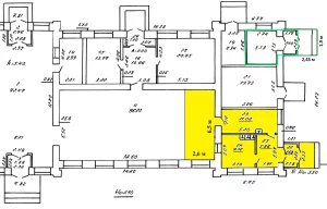
- площадью 11, 26 кв.м. имеют отдельный вход можно использовать для организации розничной торговли продовольственными и непродовольственными товарами (за исключением реализации алкогольной продукции), оказания банковских услуг, оказания услуг страхования, реализации печатной продукции и сопутствующих товаров, оказания услуг связи, оказания услуг по работе на вычислительной технике и связанного с этим обслуживания, оказания туристических услуг и др.
Также в аренду можно взять крыльцо площадью 4, 62 кв.м.
Арендная плата за 1 кв.м. 14, 1 бел.руб.
Вероника
Город: Бобруйск
Email:
veronika190790@mail.ruАдрес объекта: г. Бобруйск, ул. Железнодорожная, д. 13
Идёт обмен данными...
Произошла ошибка






Последние 0 комментариев