№ 4010393
Территории под производство/СТО, Бобруйск, Железнодорожная 8
Информация обновлена 29 апреля 2026
Просмотров : 426
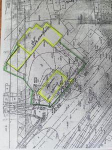
Локация: г. Бобруйск, ул. Железнодорожная, д.8.
Ключевое преимущество — удобная транспортная развязка, подъездные пути, близость к железнодорожному вокзалу.
Готовое решение для:
• грузового и легкового СТО с местом во дворе под открытую стоянку легкового и грузового транспорта;
• производство мебели/металлоконструкций;
• склад-магазин;
• распределительный центр;
• любое иное профильное предприятие.
Состав комплекса:
• Земельный участок: 0, 3059 га.
• Административно-технический корпус: 511, 00 кв.м.
• Производственно-складское помещение: 927, 00 кв.м.
• Проходная (7, 00 кв.м), въездные ворота, кирпичное ограждение по периметру.
Коммуникации:
• Отопление: центральное (своя тепловая камера) + возможность автономного котла.
• Вода и канализация: центральные.
• Электричество: 105 кВт (достаточно для большинства производств).
Состояние: Комплекс в рабочем состоянии, готов к эксплуатации.
Звоните, покажу на месте, предоставлю все документы.
+375-29-33-12-640 Евгений.
Ключевое преимущество — удобная транспортная развязка, подъездные пути, близость к железнодорожному вокзалу.
Готовое решение для:
• грузового и легкового СТО с местом во дворе под открытую стоянку легкового и грузового транспорта;
• производство мебели/металлоконструкций;
• склад-магазин;
• распределительный центр;
• любое иное профильное предприятие.
Состав комплекса:
• Земельный участок: 0, 3059 га.
• Административно-технический корпус: 511, 00 кв.м.
• Производственно-складское помещение: 927, 00 кв.м.
• Проходная (7, 00 кв.м), въездные ворота, кирпичное ограждение по периметру.
Коммуникации:
• Отопление: центральное (своя тепловая камера) + возможность автономного котла.
• Вода и канализация: центральные.
• Электричество: 105 кВт (достаточно для большинства производств).
Состояние: Комплекс в рабочем состоянии, готов к эксплуатации.
Звоните, покажу на месте, предоставлю все документы.
+375-29-33-12-640 Евгений.
Евгений
Город: Бобруйск
Email:
Evasilev7980@gmail.comУНП: 791108035
Адрес объекта: г.Бобруйск, ул.Железнодорожная 8
Идёт обмен данными...
Произошла ошибка









Последние 0 комментариев