№ 4000015
4-к кв. по ул. Ковзана
Информация обновлена 26 декабря 2025
Просмотров : 1354
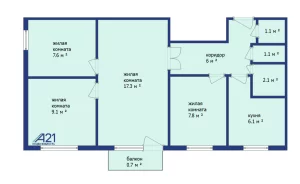
Продается 4х комнатная квартира по улице Ковзана. Общ. пл. 58.2 м. кв., жилая 41.8 м. кв. кухня 6.1 м. кв. Квартира подготовлена к ремонту выровнены полы, установлены окна ПВХ и хорошая входная дверь, получено разрешение на перепланировку, что позволяет соединить кухню с соседней комнатой, сделав ее уютной столовой. В коридоре есть ниша для просторной гардеробной. Дом находится в районе с отличной инфраструктурой: детский сад, школа, поликлиника, магазины, торговый центр, остановки общественного транспорта, все в шаговой доступности. Цена: 29 000 у.е.
ОАО " А21 Недвижимость центр услуг", лицензия № 02240/423 от 17.08.2021
Город: Бобруйск
Email:
an_a21@mail.ruУНП: 791278868
№ Договора: 187/1 от 06.10.2025
Организация: А21 Недвижимость центр услуг. Агентство недвижимости
Адрес объекта: ул. Ковзана, д. 50
Идёт обмен данными...
Произошла ошибка








Последние 0 комментариев