№ 3866003
Снижение цены! Жилой дом в г.Кировск
Информация обновлена 30 марта 2026
Просмотров : 8496
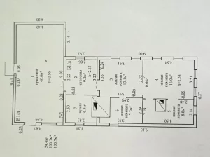
Продаётся жилой бревенчатый дом в г. Кировск. Общая площадь дома- 101, 4 м2., которая включает в себя большую прихожую 40 м², кухню 6 м², столовую 9 м² и четыре жилых комнаты. Установлен газовый котел Vaillant и современные радиаторы. В доме газовое и печное отопление. Печи полностью рабочие. Центральное водоснабжение. На участке 15 соток имеются хоз.постройки, баня, плодовые деревья. Приглашаем на просмотры! Стоимость 11500 у.е.
ООО «Ассистанс Хэлс Риэлт» № 02240/350 от 24.10.2017
Город: Кировск
Email:
rielt.bobryisk@mail.ruУНП: 192962587
№ Договора: 48/8 от 25.07.2025
Адрес объекта: г.Кировск, ул.Володарского
Идёт обмен данными...
Произошла ошибка













Последние 0 комментариев