№ 4007479
3-комн. квартира в кирп доме 1997 г. постр. в гп Глуск. 20500 у.е
Информация обновлена 24 апреля 2026
Просмотров : 1002
Продается светлая и теплая квартира в панельном доме 1997 года постройки. Современная планировка и удачное расположение делают её отличным вариантом для жизни.
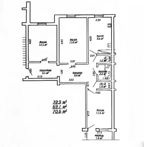
Основные характеристики:
Площадь: общая — 71 кв.м, жилая — 40 кв.м., большая и удобная кухня 9, 6 кв.м.
Планировка: все комнаты раздельные, санузел также раздельный. Дополнительно имеется «темная комната» (кладовая), которую можно оборудовать под гардеробную.
Имеется два подвала.
Установлены современные стеклопакеты и счетчики.
Квартира без ремонта что позволит шанс реализовать ремонт на свой собственный вкус.
Вблизи расположены детские сады (№1, №3, №4) и средняя школа №2, прямо у дома детская школа искусств
Рядом работают продуктовые магазины (например, «Родны кут»), аптека, отделение банка, недалеко находятся районный Дом культуры, рядом протекает живописная река Птичь, идеальное место для отдыха на свежем воздухе.
20500 у.е.
Агентство «Сектор недвижимости Основа» гарантирует юридическую ответственность и законность сделки по данному объекту.
Основные характеристики:
Площадь: общая — 71 кв.м, жилая — 40 кв.м., большая и удобная кухня 9, 6 кв.м.
Планировка: все комнаты раздельные, санузел также раздельный. Дополнительно имеется «темная комната» (кладовая), которую можно оборудовать под гардеробную.
Имеется два подвала.
Установлены современные стеклопакеты и счетчики.
Квартира без ремонта что позволит шанс реализовать ремонт на свой собственный вкус.
Вблизи расположены детские сады (№1, №3, №4) и средняя школа №2, прямо у дома детская школа искусств
Рядом работают продуктовые магазины (например, «Родны кут»), аптека, отделение банка, недалеко находятся районный Дом культуры, рядом протекает живописная река Птичь, идеальное место для отдыха на свежем воздухе.
20500 у.е.
Агентство «Сектор недвижимости Основа» гарантирует юридическую ответственность и законность сделки по данному объекту.
ОДО «Сектор недвижимости «Основа» лицензия № 02240/128 выд. МЮ РБ от 03.08.2006 г
Город: Бобруйск
Email:
7.al@mail.ruУНП: 490426924
№ Договора: 4/3 от 09.03.2026
Организация: Сектор недвижимости Основа. Агентство недвижимости
Адрес объекта: Глуск, ул. Кирова
Идёт обмен данными...
Произошла ошибка














Последние 0 комментариев