№ 4003599
2-комн. квартира возле Дома Связи, ул. Минская, 29. 30500 у.е
Информация обновлена 30 января 2026
Просмотров : 2905
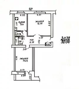
Продам 2-комнатную квартиру возле Дома Связи по ул. Минская, 29. Кирпичный дом 1976 г. Все раздельно, общая пл. 50 кв.м., комнаты 17 и 14 кв.м., кухня 7 кв.м. Лоджия из спальни. 5й этаж 5-этажного дома.
Установлены стеклопакеты, входная металлическая дверь, в остальном квартира без ремонта.
Чистый подъезд.
Никто не прописан.
30500 у.е.
Агентствам не звонить и не писать, если понадобится есть свой агент.
Установлены стеклопакеты, входная металлическая дверь, в остальном квартира без ремонта.
Чистый подъезд.
Никто не прописан.
30500 у.е.
Агентствам не звонить и не писать, если понадобится есть свой агент.
Идёт обмен данными...
Произошла ошибка








Последние 0 комментариев