5 Продаётся земельный участок с недостроенный домом, рядом с городом, деревня Бабино 1.
Построен фундамент дома, сделана разводка воды, канализации. Проведено электричество.
Земельный участок 25 соток, выровнен. Имеется весь проект на дом.
Цена 6000 у.е.
ООО «Ассистанс Хэлс Риэлт» № 02240/350 от 24.10.2017
Email:
rielt.bobryisk@mail.ruАдрес : Бобруйский район,Бабино 1
УНП: 192962587
№ Договора: 10/8 от 29.10.2024
раскрыть
скрыть
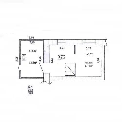
9 Общая площадь дома 72кв.м.
5 комнат, материал стен бревно, водопровод центральный, канализация местная, отопление центральное газовое, туалет ванна есть, крыша шифер.
Идеальное месторасположение, рядом магазины остановки общественного транспорта и вся центральная инфраструктура "Даманского" района.
Стоимость 38.000$
ООО «Ассистанс Хэлс Риэлт» № 02240/350 от 24.10.2017
Email:
rielt.bobryisk@mail.ruАдрес : ул. Профсоюзов
УНП: 192962587
№ Договора: 87/8 от 23.12.2025
раскрыть
скрыть
8 Дом состоит из двух квартир, путём вычленения.
Общая площадь продаваемой квартиры 54 кв.м, 3 комнаты, земля 9 соток.
Материал стен кирпич, год постройки 1993, газовое отопление, местная канализация.
На территории есть баня.
Идеально подходит для покупки с использованием материнского капитала и льготного кредитования.
Стоимость 29 900 $.
ООО «Ассистанс Хэлс Риэлт» № 02240/350 от 24.10.2017
Email:
rielt.bobryisk@mail.ruАдрес : пер. Черепичный, д. 33
УНП: 192962587
№ Договора: 78/8 от 03.12.2025
раскрыть
скрыть
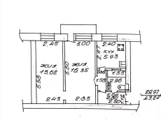
10 Основные характеристики:
• Общая площадь — 63 кв.м
• Кухня — 9, 5 кв.м
• Все комнаты изолированные
• Раздельный санузел
• Застеклённая лоджия
• Удобная планировка, при входе имеется тамбур
В квартире выполнен качественный косметический ремонт, можно заехать и жить.
Преимущества локации:
• Очень развитый район
• Школы и детские сады — во дворе дома
• В шаговой доступности магазины, торговые центры, аптеки
• Отличное транспортное сообщение — легко добраться в любую точку города
Квартира идеально подойдёт для семьи, ценящей комфорт, удобство и развитую инфраструктуру.
Стоимость 43900 у.е.
ООО «Ассистанс Хэлс Риэлт» № 02240/350 от 24.10.2017
Email:
rielt.bobryisk@mail.ruАдрес : г. Бобруйск, ул. Ульяновская, д. 72
УНП: 192962587
№ Договора: 11/8 от 21.01.2026
Организация:
Ассистанс Хэлс Риэлт. Агентство недвижимости
раскрыть
скрыть
10 Квартира располагается на удобном 3 этаже 5 дома не угловая. Дом после капитального ремонта с полной заменой сантехники.
Квартира продается с мебелью для комфортного проживания есть всё, ничего делать не надо заезжай и живи.
Удобное местоположение предоставляет доступ к магазинам, транспортной инфраструктуре, торговом центре "Корона" и многое другое.
Стоимость 40 000$
ООО «Ассистанс Хэлс Риэлт» № 02240/350 от 24.10.2017
Email:
rielt.bobryisk@mail.ruАдрес : г. Бобруйск, ул. Западная, д. 5
УНП: 192962587
№ Договора: 80/8 от 05.12.2025
Организация:
Ассистанс Хэлс Риэлт. Агентство недвижимости
раскрыть
скрыть
7 Общая площадь дома 66.5кв.м
Площадь участка 5.3 сот.
Отопление: твёрдотопливный котёл.
Водопровод: центральный.
Состояние дома жилое, кое-где сделан ремонт, окна ПВХ, входная дверь металлическая, фундамент и бревно в хорошем состоянии. В доме есть ванна и туалет.
Хорошее территориальное расположение и хорошие соседи, неподалёку школа, садик, торговые центры и остановки общественного транспорта.
Стоимость 13 800$
ООО «Ассистанс Хэлс Риэлт» № 02240/350 от 24.10.2017
Email:
rielt.bobryisk@mail.ruАдрес : пер. 1-й Чкалова
УНП: 192962587
№ Договора: 85/8 от 15.12.2025
раскрыть
скрыть
10 Расположена на 6/13 этажного кирпичного дома.
Общая площадь по СНБ 45, 76 кв. м., общая площадь 41, 9 кв. м, кухня 8.7 кв. м
В квартире сделан ремонт, хорошая сантехника, выровнены стены.
Всё в шаговой доступности, развитый район: школы, магазины, фитнес, транспорт.
Цена 34000 у.е.
ООО «Ассистанс Хэлс Риэлт» № 02240/350 от 24.10.2017
Email:
rielt.bobryisk@mail.ruАдрес : г. Бобруйск, ул. Ульяновская, д. 60
УНП: 192962587
№ Договора: 52/8 от 22.08.2025
раскрыть
скрыть
5 Бревенчатый дом общей площадью 49 кв. м., 6 соток земли.
Вода центральная, газ идёт по улице.
До остановки общественного транспорта 2-3 минуты ходьбы.
Цена 6900 у.е., торг на сделке.
ООО «Ассистанс Хэлс Риэлт» № 02240/350 от 24.10.2017
Email:
rielt.bobryisk@mail.ruАдрес : 2-й пер. Рылеева
УНП: 192962587
№ Договора: 80/8 от 05.12.2025
Организация:
Ассистанс Хэлс Риэлт. Агентство недвижимости
раскрыть
скрыть
7 Общей площадью 34.4 м2, жилой 23.35м2, кухня 4.02 м2.
К дому пристроена веранда 17.54 м2.
Отопление печное, водопровод центральный, канализация местная, газ идёт по улице.
Земельный участок 0.1083га с плодовыми насаждениями.
В шаговой доступности школа, дет.сад, остановки общественного транспорта.
Цена 7000 у.е
ООО «Ассистанс Хэлс Риэлт» № 02240/350 от 24.10.2017
Email:
rielt.bobryisk@mail.ruАдрес : г. Бобруйск, ул. Ванцетти
УНП: 192962587
№ Договора: 7/8 от 28.02.2026
Организация:
Ассистанс Хэлс Риэлт. Агентство недвижимости
раскрыть
скрыть
6 Квартира полностью готова к проживанию - продаётся с мебелью и техникой. Интерьер в бежевых спокойных тонах всегда будет актуален.
Общая площадь 34.7 м2, просторная кухня 8.5м2, раздельный санузел. Комфортный 4 этаж, не угловая.
Всё в пешей доступности - транспорт, торговые центры, школы, дет.сады. Чистый подъезд и хорошие соседи - бонус к покупке! Приглашаем на просмотр.
Стоимость - 32000 у.е.
ООО «Ассистанс Хэлс Риэлт» № 02240/350 от 24.10.2017
Email:
rielt.bobryisk@mail.ruАдрес : г. Бобруйск, ул. Лынькова, д. 31
УНП: 192962587
№ Договора: 86/8 от 18.12.2025
Организация:
Ассистанс Хэлс Риэлт. Агентство недвижимости
раскрыть
скрыть
9 Дом с мансардным этажом, общей площадью 73.2 кв. м.
Есть баня, гараж и свой колодец с водой! Дом в хорошем жилом состоянии!
Участок просторный -7 соток, имеется сарай для хранения хоз. инвентаря.
Рядом лесной массив, всегда чистый воздух и грибные места!
Хорошие подъездные пути на автомобиле, чистая дорога!
Цена 10000 у.е., небольшой торг!
ООО «Ассистанс Хэлс Риэлт» № 02240/350 от 24.10.2017
Email:
rielt.bobryisk@mail.ruАдрес : СТ Сосновый
УНП: 192962587
№ Договора: 7/8 от 12.02.2025
раскрыть
скрыть
5 Кирпичный дом 1989 г.п., высокий 1 этаж, не угловая, окна выходят в тихий двор.
Площадь квартиры 35, 6 м2, просторная кухня 9м2, раздельный санузел, балкон.
В шаговой доступности детский садик и школа, хорошее транспортное сообщение..
Стоимость 22000 у.е
ООО «Ассистанс Хэлс Риэлт» № 02240/350 от 24.10.2017
Email:
rielt.bobryisk@mail.ruАдрес : ул. Орловского, д. 30
УНП: 192962587
№ Договора: 10/8 от 12.03.2026
раскрыть
скрыть
9 Общей площадью 70, 8 м2, кухня 7 м2.
Дом оборудован элекроотоплением, имеется печка, камин.
Вода со скважины, выведены трубы для подключения душа, туалета и стиральной машины.Установлены окна ПВХ.Крыша металлочерепица.Потолки в двух комнатах натяжные.
Земельный участок 0.2498 га, обработан, посажены фруктовые деревья, голубика, фундук, орех, сортовая клубника.
Есть сарай.Подъезная дорога к дому асфальтирована.В деревне есть магазин, клуб.Регулярно ходят автобусы.
Цена 19300 у.е.
ООО «Ассистанс Хэлс Риэлт» № 02240/350 от 24.10.2017
Email:
rielt.bobryisk@mail.ruАдрес : д. Капустино, ул. Центральная
УНП: 192962587
№ Договора: 11/8 от 18.03.2026
Организация:
Ассистанс Хэлс Риэлт. Агентство недвижимости
раскрыть
скрыть
7 Площадь домика 25.2 кв.м
Произведен полный ремонт: заменена проводка (новые светильники), новый шифер, пол натуральная доска под лаком, все окна ПВХ.
В доме две комнаты и кухня. Печка в рабочем состоянии. На участке сезонный водополив.
Ровный участок, имеются кустарники смородины, малины, ежевики, смородины, малины, яблони с хорошим урожаем "Штрифель" и "Малиновка".
Есть сарай для хранения хозинвентаря.
Земля в частной собственности, 5.2 сотки.
Цена 6900 у.е.
ООО «Ассистанс Хэлс Риэлт» № 02240/350 от 24.10.2017
Email:
rielt.bobryisk@mail.ruАдрес : СТ "Умелец"
УНП: 192962587
№ Договора: 20/8 от 17.03.2026
Организация:
Ассистанс Хэлс Риэлт. Агентство недвижимости
раскрыть
скрыть
7 Основные характеристики:
▪️Общая площадь 50.09м2
▪️Жилая площадь 32.02м2
▪️ Площадь кухни 8.7 м2
На участке в 4 сотки имеются хоз.постройки.
Рядом вся инфраструктура - остановки общественного транспорта, школы, детские сады, магазины.
Звоните, чтобы узнать все подробности и договориться о просмотре!
Стоимость 18500у.е., цена обсуждается только при осмотре.
ООО «Ассистанс Хэлс Риэлт» № 02240/350 от 24.10.2017
Email:
rielt.bobryisk@mail.ruАдрес : ул.Горького
УНП: 192962587
№ Договора: 74/8 от 04.11.2025г.
раскрыть
скрыть
8 Общей площадью 66.3м2, жилой 40.3м2, кухня 8.8м2.
На 1 высоком эт/5 эт.кирпичного дома.
Все комнаты изолированные, сан.узел раздельный.Окна ПВХ, лоджия застеклена.В двух спальнях потолки натяжные, на полу линолеум.Имеется подвал.
Дом расположен в тихом, зелёном районе, рядом стадион им.Прокопенко, школа, дет.сад, остановки троллейбуса, автобусов, различные магазины.Цена 43500 у.е.
ООО «Ассистанс Хэлс Риэлт» № 02240/350 от 24.10.2017
Email:
rielt.bobryisk@mail.ruАдрес : г. Бобруйск, ул. Комсомольская, д. 161
УНП: 192962587
№ Договора: 2/8 от 22.01.2026
Организация:
Ассистанс Хэлс Риэлт. Агентство недвижимости
раскрыть
скрыть
8 Общей площадью 26.6 м2 и веранда 25 м2.
Уютный дом, отопление печное, есть камин, скважина.
Земельный участок 25 соток, обработан, есть плодовые деревья.
Цена 8500 у.е.
ООО «Ассистанс Хэлс Риэлт» № 02240/350 от 24.10.2017
Email:
rielt.bobryisk@mail.ruАдрес : д. Топорки
УНП: 192962587
№ Договора: 22/8 от 26.03.2026
Организация:
Ассистанс Хэлс Риэлт. Агентство недвижимости
раскрыть
скрыть
10 Общая площадь -58 кв. м., жилая площадь 42.2 кв. м., кухня 6.2 кв. м.
Комнаты 18/9/7.7/7.5 кв.м.
Квартира расположена на удобном 2 этаже 5-этажного дома.
Санузел раздельный, есть балкон с выходом из комнаты, застеклен, кладовая комната, счётчики.
Квартира готова к заселению, никто не прописан, ключи в день сделки.
В шаговой доступности вся инфраструктура, тихий зелёный район.
Стоимость 34900 у.е., при продаже за наличные возможет небольшой торг. Рассмотрим банковский кредит, а также мат капитал и субсидии .
ООО «Ассистанс Хэлс Риэлт» № 02240/350 от 24.10.2017
Email:
rielt.bobryisk@mail.ruАдрес : ул. Горелика, д. 52
УНП: 192962587
№ Договора: 21/8 от 24.03.2026
Организация:
Ассистанс Хэлс Риэлт. Агентство недвижимости
раскрыть
скрыть
10 по адресу: Семенова 30.
Везде окна ПВХ. На полу плитка, ламинат, линолеум. Лоджия застеклена.
Технические характеристики:
Общая площадь: 50.1кв.м
Площадь кухни: 7.16кв.м
Удачная планировка. Раздельные комнаты на разные стороны дома, раздельный санузел .Спальня с видом на лес, зал с видом во двор. В шаговой доступности остановка, магазины, школа, дет сад.Рядом озеро, лес, река Березина. Продажа возможна с мебелью.
Выполнен капитальный ремонт дома в 2026 году.
Стоимость: 27.000$
ООО «Ассистанс Хэлс Риэлт» № 02240/350 от 24.10.2017
Email:
rielt.bobryisk@mail.ruАдрес : г. Бобруйск, ул. Семёнова, д. 30
УНП: 192962587
№ Договора: 84/8 от 13.12.2025
Организация:
Ассистанс Хэлс Риэлт. Агентство недвижимости
раскрыть
скрыть
4 Площадь общая 31 кв.м.
Имеется водопровод и канализация центральные. Отдельных вход.
Проходное место. Готово к использованию.
Цена 31500 у.е., небольшой торг!
ООО «Ассистанс Хэлс Риэлт» № 02240/350 от 24.10.2017
Email:
rielt.bobryisk@mail.ruАдрес : ул. Карла Маркса, д. 49
УНП: 192962587
№ Договора: 23/8 от 30.03.2026
Организация:
Ассистанс Хэлс Риэлт. Агентство недвижимости
раскрыть
скрыть
10 Общая площадь 43 кв.м., жилая площадь 16.9 кв.м, кухня 8.6 кв.м
Квартира расположена на 9 этаже 9-этажного дома, есть тех этаж.
В квартире сделан косметический ремонт, заменены все окна, межкомнатные двери, хорошая входная металличесская дверь.
В комнате и коридоре ламинат, ванная комната и туалет выложены плиткой.
Есть застекленная лоджия с выходом из кухни.
В квартире остается шкаф-купе и вся мебель.
В шаговой доступности: детские сады и школы, торговые центры, магазины, рынок, почта, поликлиника, кафе, остановки общественного транспорта с хорошим сообщением.
Цена 29800 у.е.
ООО «Ассистанс Хэлс Риэлт» № 02240/350 от 24.10.2017
Email:
rielt.bobryisk@mail.ruАдрес : пр-т Строителей, д. 66, кор. 2
УНП: 192962587
№ Договора: 13/8 от 26.03.2026
Организация:
Ассистанс Хэлс Риэлт. Агентство недвижимости
раскрыть
скрыть
4 Дом кирпичный общей площадью 51 кв.м., с мансардным этажом.
Отопление печное, вода сезонная.
Участок 5 соток с плодовыми деревьями.
Рядом лес.
Цена 5500 у.е.
ООО «Ассистанс Хэлс Риэлт» № 02240/350 от 24.10.2017
Email:
rielt.bobryisk@mail.ruАдрес : Бобруйский р-н, СТ "Родник"
УНП: 192962587
№ Договора: 15/8 от 02.04.2026
Организация:
Ассистанс Хэлс Риэлт. Агентство недвижимости
раскрыть
скрыть
4 Участок 7.4 сотки, обнесен забором.
Дом общей площадью 48 кв.м.
В шаговой доступности река Березина, магазин, до остановки общественного транспорта 2-3 минуты ходьбы.
Стоимость 9700 у.е.
ООО «Ассистанс Хэлс Риэлт» № 02240/350 от 24.10.2017
Email:
rielt.bobryisk@mail.ruАдрес : ул. Новокрайняя
УНП: 192962587
№ Договора: 76/8 от 22.11.2025
Организация:
Ассистанс Хэлс Риэлт. Агентство недвижимости
раскрыть
скрыть
9 Квартира расположена на 5-м этаже 5-ти этажного дома, раздельные комнаты, раздельный санузел.
Общая площадь 47.9 кв.м
Площадь кухни 9, 4 кв.м.
Сделан капитальный ремонт: окна-стеклопакеты выходят на две стороны, застекленный балкон. пол - ламинат, плитка, произведена замена всей сантехники, удобная планировка, большая кухня, хорошая входная дверь.
Удобная локация, отличное транспортное сообщение.
О районе: в шаговой доступности находится все для комфортной жизни - продуктовые магазины, аптека, ФОК "Днепровец", школа, детсад, банковское отделение, почта. о доме: аккуратный подъезд, приятные соседи, чистый двор, парковочные места, детская площадка.
Стоимость 30.000$
ООО «Ассистанс Хэлс Риэлт» № 02240/350 от 24.10.2017
Email:
rielt.bobryisk@mail.ruАдрес : г. Бобруйск, ул. Горелика, д. 25
УНП: 192962587
№ Договора: 4/8 от 26.02.2026
Организация:
Ассистанс Хэлс Риэлт. Агентство недвижимости
раскрыть
скрыть
9 Цена 2700 у.е.
ООО «Ассистанс Хэлс Риэлт» № 02240/350 от 24.10.2017
Email:
rielt.bobryisk@mail.ruАдрес : д. Глебова Рудня
УНП: 192962587
№ Договора: 16/8 от 08.04.2026
Организация:
Ассистанс Хэлс Риэлт. Агентство недвижимости
раскрыть
скрыть
8 Общая площадь 61 кв.м., жилая площадь 54 кв.м., в доме 5 комнат.
Водопровод центральный, канализация местная на 2 кольца, отопление паровое, есть возможность подключения природного газа.
Окна все заменены на ПВХ, высокие потолки и фундамент.
Участок 5.5 соток, огорожен, есть въездные ворота и калитка из металлопрофиля, удобный заезд.
На участке плодовые деревья и кустарники.
Дом в жилом состоянии, готов к проживанию.
Стоимость 19900 у.е., рассмотрим банковский кредит, мат капитал и субсидии не рассматриваем.
ООО «Ассистанс Хэлс Риэлт» № 02240/350 от 24.10.2017
Email:
rielt.bobryisk@mail.ruАдрес : ул. Речная
УНП: 192962587
№ Договора: 5/8 от 26.02.2026
Организация:
Ассистанс Хэлс Риэлт. Агентство недвижимости
раскрыть
скрыть
10 ООО «Ассистанс Хэлс Риэлт» № 02240/350 от 24.10.2017
Email:
rielt.bobryisk@mail.ruАдрес : карла маркса 326 бобруйск
УНП: 192962587
№ Договора: 6/8 от 26.02.2026
Организация:
Ассистанс Хэлс Риэлт. Агентство недвижимости
раскрыть
скрыть
8 Общая площадь 74 кв.м., жилая площадь 51 кв.м.
Отопление электрокотлом, водопровод центральный, канализация местная.
В доме 4 жилых комнаты, кухня, ванная.
Полы ламинат, плитка. Подогрев пола в ванной комнате, коридоре, кухне.
Заменены все окна на ПВХ, натяжные потолки.
Участок 25 соток, на участке хозпостройки, плодовые деревья.
Цена 25000 у.е.
ООО «Ассистанс Хэлс Риэлт» № 02240/350 от 24.10.2017
Email:
rielt.bobryisk@mail.ruАдрес : д. Березовичи, ул. Шароварова
УНП: 192962587
№ Договора: 17/8 от 08.04.2026
Организация:
Ассистанс Хэлс Риэлт. Агентство недвижимости
раскрыть
скрыть
10 ООО «Ассистанс Хэлс Риэлт» № 02240/350 от 24.10.2017
Email:
rielt.bobryisk@mail.ruАдрес : ул. Колхозная
УНП: 192962587
№ Договора: 2/8 от 25.10.2024
Организация:
Ассистанс Хэлс Риэлт. Агентство недвижимости
раскрыть
скрыть
3 Александр
Email:
shura2285@mail.ruАдрес : ул. Комсомольская, 44

5 Татьяна
Email:
Alex74711@mail.ruАдрес : СТ ,,березанька ,,

Общей площадью 52м2.,
Жилая-29м2., кухня-8.6м2., Раздельный санузел, ванная.
Есть балкон, везде окна ПВХ.Центральная канализация, центральное отопление.Подогрев осуществляется бойлером.Есть сарай, и участок земли. Рядом находится: Школа, детский сад, Банк, Почта, магазины, больница, Дом Культуры, пункт выдачи Озон и Вайлдберриз, Баня. Вокруг посёлка лес свежий воздух игровые площадки для детей. Хорошее транспортное сообщение. Цена . 13500$. Небольшой торг уместен!!!
Я
Email:
mariapetrova_2020@mail.ruАдрес : Адамовича. 14
5 Сделан КАПИТАЛЬНЫЙ ремонт всей квартиры, заменена вся электрическая проводка на медную с новым распределительным щитком, вся сантехника, с заменой стояков на воду и канализацию, пол - новая стяжка и широкоформатная плитка одним контуром по всей квартире, стены - декоративная штукатурка под натуральный мрамор с добавлением сусального золота, новые окна, двери, потолки. Удобное расположение, все необходимое в шаговой доступности, во дворе есть парковочное место. 35 753 у.е. Документы готовы к продаже, никто не прописан, сделка за один день.
Вадим
Email:
wadimbosss@gmail.comАдрес : 50 лет Октября дом 30А

2 Площадь 35 кв м, этаж 2 / 2. В торговом центре отличный ремонт, естественное освещение, отопление, электричество, парковка, охрана, скоростной интернет.
Максимально выгодные условия. Все подробности по телефону.
Я
Email:
avtandilyan.argine@mail.ru

5 Дмитрий
Email:
kiseleud@mail.ruАдрес : 50 летОктября д.34а кв.1

3 Рауф
Email:
raufmamedo@yandex.ruАдрес : ул Чонгарская 51
4 Установлены счётчики на газ и воду.
В подъезде новый лифт.
Красивый вид из окна на ледовый дворец.
Хорошие соседи. Хорошая инфраструктура магазины, дет сады, школа все в пешей доступности.
Квартира очень теплая, пригодна к проживаю.
Фото по запросу.
Продажа без риэлторов, большая просьба не беспокоить.
Урицкого 137, 9 этаж.
38.300
Евгений
Email:
gektur93@mail.ruАдрес : Урицкого 137

4 Игорь Викторович
Email:
dom.byta.95@mail.ruАдрес : г. Бобруйск, ул. Карла Маркса, дом 118
УНП: 790491010
раскрыть
скрыть
5 Общ. площадь - 68.43
Жилая - 42.17
Кухня - 8.78
Две большие лоджии, на две стороны . Окна и лоджии застеклены, ПВХ ( + 3000$ экономии ) На общей площадке имеется кладовая. Квартира очень теплая . Произведен кап. ремонт дома . Хорошие, спокойные соседи ( немаловажно ) Все социально значимые объекты в шаговой доступности, хорошее транспортное сообщение. Или обменяю на 2-х ком. ( новой планировки ) в этом же районе .
Цена 39500 у. е.
Онлайн показ объекта .
Торг приветствуется. Мои партнёры: "Белгосстрах", Банк "БелВЭБ", "Белинвестбанк", "Паритетбанк", "Беларусбанк".и и.д. и т.п )))
Адрес : Ул . Ковзана 51
10 Общая площадь 120 кв. м., жилая 87 кв. м, кухня 12 кв. м.
В доме 3 просторных комнаты (25.5/17/13).
Во всем доме заменены полы (балки, лаги всё новое), окна ПВХ, в одной комнате натяжной поток. Санузел в доме, черновая отделка.
Отопление газовое (разведены новые полипропиленовые трубы, батареи чугун), вода центральная, канализация местная на 7 колец.
К дому пристроен кирпичный гараж 22 кв.м.
Участок 23 сотки.
В шаговой доступности находится школа, детский сад, белпочта, магазин.
Хорошие подъездные асфальтированные пути.
Цена 14500 у.е, торг при осмотре!
ООО «Ассистанс Хэлс Риэлт» № 02240/350 от 24.10.2017
Email:
rielt.bobryisk@mail.ruАдрес : аг. Павловичи, ул. Молодёжная
УНП: 192962587
№ Договора: 4/8 от 24.02.2026
Организация:
Ассистанс Хэлс Риэлт. Агентство недвижимости
раскрыть
скрыть

4 Лучше место для Вашего дома. Агентство и риэлторов просьба не беспокоить
Цена 37750$ по курсу
Александр
Email:
diaks@tut.byАдрес : П.Березина 51

5 Участок 6 соток, есть возможность увеличения.
Дом 1995 года постройки, двухэтажный ( первый этаж - 27 кв. м), также есть мансарда, полноценная как второй этаж ( 15 кв. м), оснащен электричеством, отапливается печкой, есть камин, погреб, тв антенна, ловит интернет. Внутри дома гараж (16 кв. м), пристроена веранда, перед входом сделана терраса из плодоносящего винограда.
Дом полностью оформлен в собственность.
На участке имеется собственный колодец, вода чистая, отличного качества.
Годится для постоянного полноценного летнего проживания, есть функционирующий уличный туалет, а также оборудовано место под душевую.
На участке имеются плодовые деревья, кустарники, цветы. Удобный подъезд до товарищества и самого участка на автомобиле. Также, до СТ ходит рейсовый автобус, около остановки расположен ларек с продуктами первой необходимости.
Дом в руках одной семьи. 15000р.
Владимир
Адрес : Химковский сс, Бобруйский рн, Могилевская обл, СТ Педагог
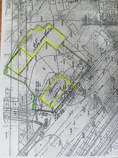
5 Ключевое преимущество — удобная транспортная развязка, подъездные пути, близость к железнодорожному вокзалу.
Готовое решение для:
• грузового и легкового СТО с местом во дворе под открытую стоянку легкового и грузового транспорта;
• производство мебели/металлоконструкций;
• склад-магазин;
• распределительный центр;
• любое иное профильное предприятие.
Состав комплекса:
• Земельный участок: 0, 3059 га.
• Административно-технический корпус: 511, 00 кв.м.
• Производственно-складское помещение: 927, 00 кв.м.
• Проходная (7, 00 кв.м), въездные ворота, кирпичное ограждение по периметру.
Коммуникации:
• Отопление: центральное (своя тепловая камера) + возможность автономного котла.
• Вода и канализация: центральные.
• Электричество: 105 кВт (достаточно для большинства производств).
Состояние: Комплекс в рабочем состоянии, готов к эксплуатации.
Звоните, покажу на месте, предоставлю все документы.
+375-29-33-12-640 Евгений.
Евгений
Email:
Evasilev7980@gmail.comАдрес : г.Бобруйск, ул.Железнодорожная 8
УНП: 791108035

5 С.т. Боровинка, 20 км от города. Несколько лет не использовался.
На территории есть вагончик, два гаража. Электричество в дом заведено (для работы электричества требуется установка счётчика вне дома (на столб)), воды нет, но есть возможность провести.
Материалы (фанера: 18, 15 мм и 4 мм в хорошем состоянии), деревянный шкафчик для одежды (разобран) и прочий хозяйственный инвентарь
остаются покупателю.
1100 у.е. по курсу. Разумный торг.
Дарья
Адрес : СТ Боровинка
2 Людмила
Адрес : г. Бобруйск, ул. М.Горького, 38а
УНП: 700016217
Организация:
Белшина. Производитель автомобильных шин
раскрыть
скрыть
5 Цена 174.000 бел.руб.
Ольга
Адрес : ул. Крылова, 70
5 На каждом этаже имеется санузел. Здание имеет центральное водоснабжение и канализацию, электроснабжение 380 и 220В, проложен телефонный кабель, отопление от собственной котельной.
Стоимость продажи договорная
Олег
Email:
e_n_g@mail.ruАдрес : Шинная, д. 4 б
УНП: 690541661
5 Анатолий
Email:
anatoliygudkov@yandex.byАдрес : г. Бобруйск, переулок Тургеньева, 2А

5 Продавец
Адрес : ул. Пролетарская, д. 17
Произошла ошибка



















































































































































































































































































